Villa in vendita, via Giuseppe Rito 23, Sala, Catanzaro

€ 168.500
  • 250 mq superficie
  • 8 locali locali
  • T piano piano
  • 4 bagni bagni
  • 5 p. auto p. auto
  • 250 mq superficie
  • 8 locali locali
  • T piano piano
  • 4 bagni bagni
  • 5 p. auto p. auto

Descrizione

Via G. Rito, Catanzaro Sud.
In posizione strategica, in prossimità di tutti i principali servizi ( supermercati, bar, scuole ecc), e soprattutto ben collegata a tutti i principali sbocchi della città, a pochi passi dalla rotatoria che di immette sulla strada nuova, che collega catanzaro, a Germaneto, copanello, ecc... ad ovest, ad est Simeri, Sellia, Cava - Alli ecc.., a 10 min da Catanzaro Lido come da Catanzaro Nord.
Vicinissima alla nuova metropolitana che verrà inaugurata nel 2027.

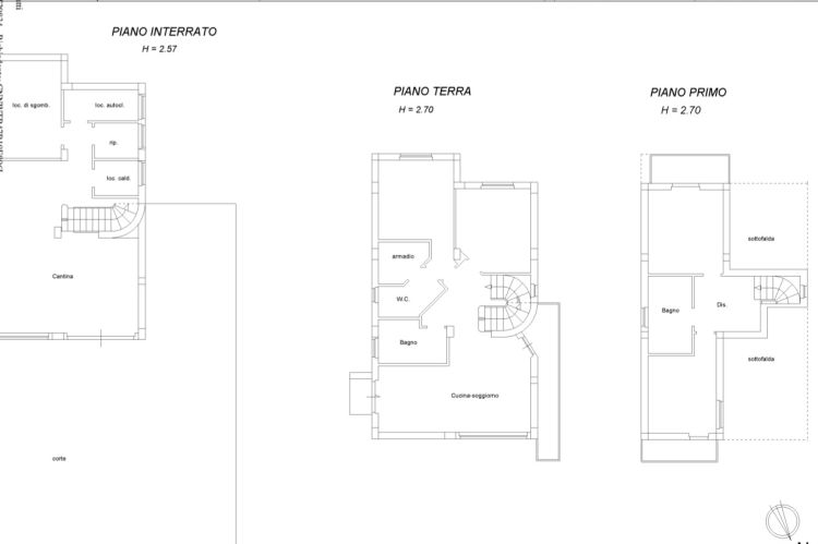
Proponiamo la vendita di una Villa Unifamiliare in buone condizioni generali, posta su 3 livelli, (piano S1-T-1,) con ampio terreno di circa 1 ettaro e mezzo, (buona parte scosceso ).
L'immobile è così composto:
Piano S1 : (adibito a Tavernetta), ingresso su ampia camera (con cucina), servizio, camera.
Piano 1: soggiorno cucina open-space, camera, servizio, balconi con splendida vista.
Piano 2: due camere, servizio.
Completa la proprietà un terreno di circa 1.5 ettaro, spazio esterno disponibile per circa 3-4 parcheggi.

Punti di forza dell'immobile:

  • Villa Unifamiliare
  • Ampio terreno
  • posizione strategica

Informazioni principali

  • Vendita - Piena proprietà
  • Villa unifamiliare
  • 250 mq
  • 8 (4 camere da letto, 4 altro), 4 bagni, cucina abitabile
  • 1 box/garage
  • 4 posti auto
  • Multipiano (su 2 piani)
  • Abitabile, classe immobile signorile
  • Parzialmente Arredato
  • Doppio vetro / PVC
  • No
  • Nord, Ovest, Est, Sud
  • 166382

Altre caratteristiche

  • Balcone
  • Camino
  • Cantina
  • Cablato
  • Cancello elettrico
  • Porta blindata
  • Impianto tv
  • Fibra Ottica
  • Infissi esterni
  • Taverna
  • Accesso per disabili
  • Giardino Privato
  • Parzialmente Arredato

Costi

  • € 168.500
  • A/2, rendita € 549

Efficienza energetica

  • 1990
  • Abitabile
  • Autonomo, a radiatori, alimentato a metano
  • Autonomo
  • Freddo/Caldo
  • G
  • 175 kWh/m2anno
A
B
C
D
E
F
G

Planimetria

Virtual Tour

Video

Indirizzo e mappa

Catanzaro - Via Giuseppe Rito, 23, Sala

Zona Sala