Negozio in vendita, via Cavour 92, Zona Mare, Alba Adriatica
- 121 mq superficie
- 1
                locali 
- T
            piano 
- 2
                bagni 
- 12
            p. auto 
 
                            Descrizione
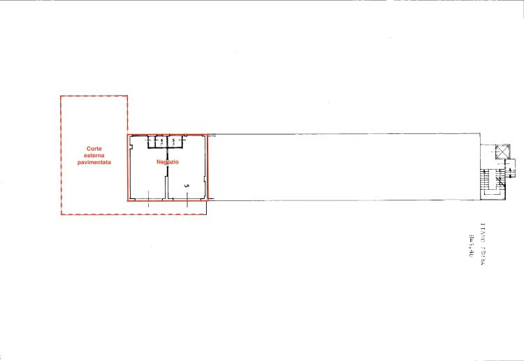
        A pochi passi dal mare, in posizione strategica e servita,  proponiamo in vendita un ampio locale commerciale di circa 88 mq, con grande potenziale di trasformazione.
L'immobile, attualmente in categoria catastale C/1, si presta perfettamente a un cambio di destinazione d’uso per la realizzazione di due comode unità abitative, ideali sia per uso residenziale che per investimento turistico.
✅ Caratteristiche principali:
Superficie interna: circa 88 mq
Due garage al piano seminterrato, ideali anche come deposito o pertinenza privata
Ampia corte esterna esclusiva, perfetta per parcheggi, giardino, zona relax o spazi estivi
Accesso diretto e indipendente
Contesto tranquillo ma a pochi minuti da tutti i servizi
Questa proposta rappresenta un’occasione rara per chi cerca:
Una soluzione vicino al mare con possibilità di personalizzazione completa
Un immobile trasformabile e valorizzabile nel tempo
Due unità indipendenti da mettere a reddito o utilizzare in famiglia
    
Punti di forza dell'immobile:
- #DoppiaOccasioneAlMare
- #InvestimentoAdAlbaAdriatica
- #LocaleTrasformabile
Informazioni principali
- Vendita - Piena proprietà
- Negozio
- 121 mq
- 1 (1 altro), 2 bagni
- 2 box/garage
- 10 posti auto
- Piano terra (su 4 piani)
- Ristrutturato, classe immobile media
- Arredato
- Vetro / Metallo
- Nord, Est, Sud
- 153952
Altre caratteristiche
- Cantina
- Infissi esterni
- Accesso per disabili
- Arredato
Costi
- € 110.000
- C/1, rendita € 1.900
- € 25/mese
Efficienza energetica
- 1980
- Ristrutturato
- Autonomo, a radiatori, alimentato a metano
- Assente
- G
- 175 kWh/m2anno
- € 840/anno
Planimetria
Indirizzo e mappa
Alba Adriatica - Via Cavour, 92, Zona Mare
Zona Zona Mare
 
                             
                             
                             
                             
                             
                             
                             
                             
                             
                             
                             
                             
                             
                             
                             
                             
                             
                             
                             
                             
                             
                             
                                     
                                     
                                     
                         
                        