Ufficio in vendita, Corso Orbassano 336, Mirafiori Nord, Torino
- 182 mq superficie
- 3
locali
- 1
piano
- 2
bagni

Descrizione
All’interno del complesso direzionale “Nadim”, proponiamo in vendita un ampio e versatile ufficio, ideale per aziende, studi professionali e attività di formazione.
L’immobile si apre su un ingresso accogliente che conduce a una grande sala open space, perfetta come sala riunioni, aula corsi o da suddividere in postazioni operative grazie all’ampia metratura e alla pianta regolare.
Completano la proprietà due uffici separati, ideali per attività che richiedono maggiore privacy o per creare uffici dirigenziali.
I locali sono particolarmente luminosi, grazie alle numerose finestre che garantiscono luce naturale durante tutta la giornata.
Il pavimento galleggiante permette di gestire in modo pratico gli impianti e di riconfigurare gli spazi con facilità.
Sono presenti due bagni distinti uomo/donna, di cui uno predisposto per l’accesso alle persone con disabilità: non attrezzato, ma con lo spazio di manovra sufficiente per la sedia a rotelle.
Il riscaldamento centralizzato a ventilconvettori assicura comfort ed efficienza in ogni stagione.
L’ufficio si trova in un contesto moderno e sicuro, con servizio di portineria e videosorveglianza attiva 24 ore su 24, oltre a un parcheggio clienti interno e sorvegliato.
Sono inoltre disponibili due posti auto al piano -1, acquistabili separatamente.
La posizione è un grande punto di forza:
L’immobile è facilmente raggiungibile sia dal centro di Torino, grazie a Corso Orbassano e Corso Unione Sovietica, sia dalla tangenziale Sud di Beinasco, rendendolo strategico per chi si muove anche da fuori città.
La zona è ben servita da autobus e linee urbane, con fermate a pochi passi.
Nelle immediate vicinanze si trovano bar, ristoranti, supermercati e altri servizi, che rendono l’area comoda e funzionale sia per il personale che per i clienti.
Questa soluzione rappresenta un’opportunità ideale per chi cerca un ufficio pronto da personalizzare, in un edificio direzionale di livello e con ottimi collegamenti.
Punti di forza dell'immobile:
- Ampio
- Posizione strategica
- Luminoso
Informazioni principali
- Vendita - Piena proprietà
- Ufficio
- 182 mq
- 3 (3 altro), 2 bagni
- 1° di 2, con ascensore
- Buono, classe immobile signorile
- Non Arredato
- Doppio vetro / Metallo
- Intera Giornata
- Nord, Est
- 161734
Altre caratteristiche
- Ascensore
- Infissi esterni
- Accesso per disabili
- Non Arredato
Costi
- € 184.000
- A/10, rendita € 3.389
Efficienza energetica
- 1996
- Buono
- Autonomo, ad aria
- Assente
- G
- 175 kWh/m2anno
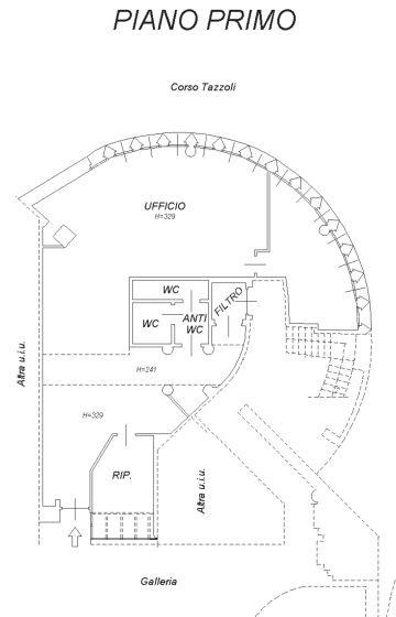
Planimetria
Indirizzo e mappa
Torino - Corso Orbassano, 336, Mirafiori Nord
Zona Mirafiori Nord