Bilocale in vendita, via Guglielmo Marconi 28, Bonate Sopra
€ 27.000
- 36 mq superficie
- 2
locali
- T
piano
- 1
bagni

Descrizione
Hai un progetto in testa? Qui può diventare realtà.
Questo piano terra è perfetto se vuoi costruire qualcosa di tuo.
Hai a disposizione un Bilocale con ingresso autonomo.
Sistemi, affitti, ci fai abitare chi vuoi tu.
Lo gestisci come vuoi. È questo il bello.
Lo spazio c’è. Il potenziale è chiaro.
È uno spazio che aspetta solo di essere valorizzato.
Lo acquisti al rustico, proprio come lo vedrai durante la visita.
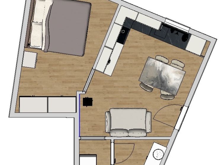
Tra le immagini trovi anche i rendering che ti aiutano a immaginare come potrebbe diventare, una volta finito secondo il tuo gusto.
Organizziamo la tua visita, così puoi toccare con mano tutto il potenziale che c’è. Scrivici.
Informazioni principali
- Vendita - Piena proprietà
- Appartamento
- 36 mq
- 2 (1 camera da letto, 1 altro), 1 bagno, cucina angolo cottura
- Piano terra (su 2 piani)
- Da ristrutturare, classe immobile economico
- Non Arredato
- Doppio vetro / Legno
- No
- Est, Sud, Cavedio
- 163826
Altre caratteristiche
- Impianto tv
- Infissi esterni
- Non Arredato
Costi
- € 27.000
- A/3
- € 40/mese
Efficienza energetica
- 1986
- Da ristrutturare
- Assente
- Assente
- In attesa di certificazione
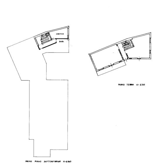
Planimetria
Indirizzo e mappa
Bonate Sopra - Via Guglielmo Marconi, 28