Trilocale in vendita, Contrada Barba d'Angelo 105, Andria

€ 140.000
  • 110 mq superficie
  • 3 locali locali
  • 7 piano piano
  • 2 bagni bagni
  • 2 p. auto p. auto
  • 110 mq superficie
  • 3 locali locali
  • 7 piano piano
  • 2 bagni bagni
  • 2 p. auto p. auto

Descrizione

Situato nella tranquilla Contrada Barba d'Angelo ad Andria, questo appartamento offre una posizione strategica per chi desidera vivere in un contesto urbano senza rinunciare alla serenità. L'edificio, che si sviluppa su sette piani, ospita l'appartamento al settimo e ultimo piano, garantendo una vista panoramica e una maggiore privacy. La presenza dell'ascensore facilita l'accesso, rendendo l'immobile adatto anche a persone con esigenze di mobilità ridotta.

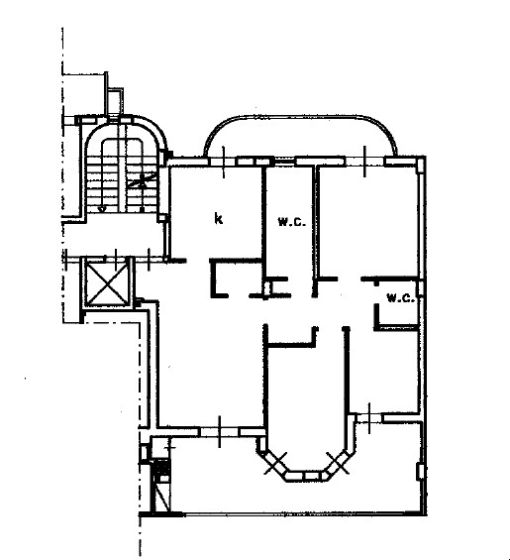
L'appartamento si estende su una superficie commerciale di circa 110 metri quadrati e presenta una disposizione funzionale e accogliente. All'interno, si trovano due camere da letto spaziose, ideali per una famiglia o per chi necessita di uno spazio aggiuntivo per un ufficio o una stanza degli ospiti. La cucina è abitabile, perfetta per chi ama cucinare e trascorrere del tempo in compagnia. Sono presenti due bagni, che offrono comodità e praticità per gli abitanti della casa. Un balcone completa la composizione dell'immobile, fornendo uno spazio esterno per momenti di relax. Sono presenti box auto di 25 mq c.a. e posto auto condominiale

L'appartamento è dotato di riscaldamento autonomo a radiatori alimentato a metano, garantendo un ambiente confortevole durante i mesi più freddi. Gli infissi esterni in doppio vetro e PVC assicurano un buon isolamento termico e acustico. La sicurezza è garantita da una porta blindata e da un cancello elettrico. L'immobile dispone di un posto auto, offrendo ampie possibilità di parcheggio. L'aria condizionata autonoma con impianto freddo/caldo assicura un clima ideale in ogni stagione. L'appartamento, in buono stato, è libero da arredamenti, permettendo ai nuovi proprietari di personalizzarlo secondo i propri gusti e necessità. Con due lati liberi paralleli, l'immobile gode di una buona esposizione alla luce naturale. Questo appartamento rappresenta un'opportunità interessante per chi cerca una soluzione abitativa confortevole e ben collegata nel comune di Andria.

Punti di forza dell'immobile:

  • luminoso
  • balconi terrazzati
  • posto auto

Informazioni principali

  • Vendita - Piena proprietà
  • Appartamento
  • 110 mq
  • 3 (2 camere da letto, 1 altro), 2 bagni, cucina abitabile
  • 1 box/garage
  • 1 posto auto
  • 7° di 7, con ascensore
  • Buono, classe immobile media
  • Non Arredato
  • Doppio vetro / PVC
  • No
  • Est, Sud
  • 164238

Altre caratteristiche

  • Balcone
  • Ascensore
  • Cancello elettrico
  • Porta blindata
  • Impianto tv
  • Fibra Ottica
  • Infissi esterni
  • Accesso per disabili
  • Non Arredato

Costi

  • € 140.000
  • A/2, rendita € 772
  • € 70/mese

Efficienza energetica

  • 2005
  • Buono
  • Autonomo, a radiatori, alimentato a metano
  • Autonomo
  • Freddo/Caldo
  • F
  • 175 kWh/m2anno
  • € 200/anno
A
B
C
D
E
F
G

Planimetria

Virtual Tour

Video

Indirizzo e mappa

Andria - Contrada Barba d'Angelo, 105