Casale in vendita, via Olmata Tre Cancelli, Pisciarelli, Bracciano
- 978 mq superficie
- 20
locali
- T
piano
- 7
bagni

Descrizione
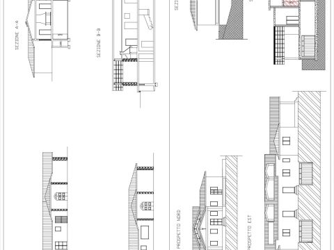
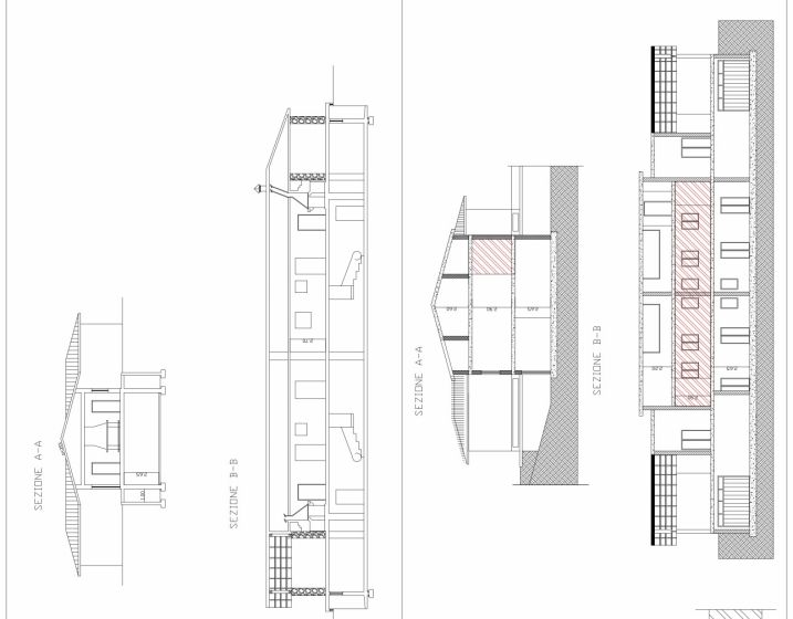
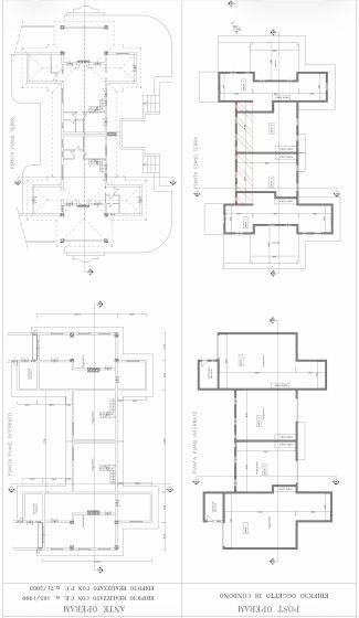
A Bracciano, distante 35 km circa da Roma, proponiamo in vendita un terreno di 4,5 ettari con un fabbricato che dev'essere completato e accatastato con una metratura complessiva lorda di 978 mq. La costruzione è posta in una posizione dominante e si trova in località Pisciarelli. Nell'appezzamento di terreno sono presenti numerosi alberi di olivo. In fase di accatastamento è possibile, a seconda dell'utilizzo che si sceglierà di destinare la costruzione, realizzare dei villini, oppure una residenza per anziani o una attività ricettiva.
Costruito con regolare licenza edilizia, sarà possibile effettuare una due diligenze per verificare la regolarità urbanistica del fabbricato in vendita. Ottimo investimento per una costruzione situata in una posizione davvero privilegiata.
Punti di forza dell'immobile:
- Libero su quattro lati
- Ottimamente esposto
- Ampia metratura
Informazioni principali
- Vendita - Piena proprietà
- Casale
- 978 mq
- 20 (10 camere da letto, 10 altro), 7 bagni, cucina abitabile
- Piano terra (su 2 piani)
- In costruzione, classe immobile media
- Non Arredato
- Doppio vetro / PVC
- No
- Nord, Ovest, Est, Sud
- 158704
Altre caratteristiche
- Terrazzo
- Camino
- Cantina
- Porta blindata
- Impianto tv
- Infissi esterni
- Accesso per disabili
- Giardino Privato
- Non Arredato
Costi
- € 1.499.000
- A/7, rendita € 0
Efficienza energetica
- 2020
- In costruzione
- Assente, ad aria, alimentato a fotovoltaico
- Assente
- NC
- 175 kWh/m2anno
Planimetria
Indirizzo e mappa
Bracciano - Via Olmata Tre Cancelli, Pisciarelli
Zona Pisciarelli