Villa in vendita, via Aristide Faccioli 173, Magliana, Roma

€ 435.000
  • 165 mq superficie
  • 4 locali locali
  • T piano piano
  • 2 bagni bagni
  • 1 box box
  • 165 mq superficie
  • 4 locali locali
  • T piano piano
  • 2 bagni bagni
  • 1 box box

Descrizione

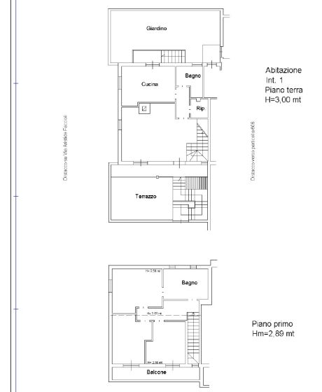
Magliana/Muratella tra via Generale Giuseppe Valle e via della Magliana, a breve distanza dalla fermata "FL1 Muratella", proponiamo una porzione di bifamiliare, in posizione dominante cosi composta; al piano rialzato troviamo un ingresso, ampio salone con camino con accesso diretto su una bellissima terrazza, dotata di tende da sole ad estensione e barbecue, una cucina tinello con accesso al giardino pavimentato, un servizio ed un ampio ripostiglio. Al primo piano troviamo tre camere matrimoniali, di cui due con balcone, ed una grande sala da bagno (in origine erano due bagni adiacenti e possono facilmente ricreati).
Completa la proprietà un grande box tutto fuori terra, che può ospitare 3/4 vetture. Un'ampia metratura del box è stata già condonata come superficie residenziale e ciò rende il villino, facilmente divisibile in due unità distinte. L'immobile è stato completamente ristrutturato con materiali di pregio, quali cotto antichizzato toscano nella zona giorno e parquet di rovere nelle stanze da letto. Ha infissi in legno di ultima generazione, con doppio vetro, a taglio termico ed ante a ribalta, zanzariere, grate anti intrusione, impianto di allarme interno esterno, impianto di condizionamento caldo/freddo, spatolato veneziano alle pareti, e soprattutto la coperture del tetto in tegole, è coperto da pannelli fotovoltaici con batteria di accumulo che producono 4,5 kwatt di corrente e rendono energeticamente indipendente l'immobile.
Si trova inoltre nel punto più alto della zona consentendo di godere di una visuale completamente aperta
La facilità di raggiungere la fermata della vicina linea ferroviaria FL1 (la quale collega l'aeroporto Leonardo da Vinci con la stazione Termini e tutti i quartieri intermedi), un vicino supermercato, l'autostrada Roma Fiumicino/Civitavecchia ed il G.R.A., oltre alla possibilità di dividere il villino in due unità abitative distinte, rende sicuramente interessante questa proposta.

Punti di forza dell'immobile:

  • ristrutturato
  • panoramico
  • assolato

Informazioni principali

  • Vendita - Piena proprietà
  • Villa bifamiliare
  • 165 mq
  • 4 (3 camere da letto, 1 altro), 2 bagni, cucina abitabile
  • 1 box/garage
  • Piano terra (su 2 piani)
  • Ristrutturato, classe immobile media
  • Non Arredato
  • Doppio vetro / Legno
  • No
  • Ovest, Est, Sud
  • 158656

Altre caratteristiche

  • Terrazzo
  • Balcone
  • Camino
  • Cantina
  • Cablato
  • Impianto di allarme
  • Porta blindata
  • Impianto tv
  • Fibra Ottica
  • Infissi esterni
  • Armadio a muro
  • Giardino Privato
  • Non Arredato

Costi

  • € 435.000
  • A/2, rendita € 1.045

Efficienza energetica

  • 1992
  • Ristrutturato
  • Autonomo, a radiatori, alimentato a metano
  • Autonomo
  • Freddo/Caldo
  • D
  • 175 kWh/m2anno
A
B
C
D
E
F
G

Planimetria

Virtual Tour

Video

Indirizzo e mappa

Roma - Via Aristide Faccioli, 173, Magliana

Zona Magliana

Annunci simili