Villa in vendita, viale I Maggio 75, Fano

€ 980.000
  • 238 mq superficie
  • 6 locali locali
  • T piano piano
  • 1 bagni bagni
  • 238 mq superficie
  • 6 locali locali
  • T piano piano
  • 1 bagni bagni

Descrizione

DOVE: A Fano, veramente a due passi dal mare (spiaggia Lido) e dal centro storico. Ci si può spostare a piedi o in bici in tutti i principali punti di interesse della città. Al tempo stesso la casa è arretrata rispetto alla strada e, dunque, protetta.
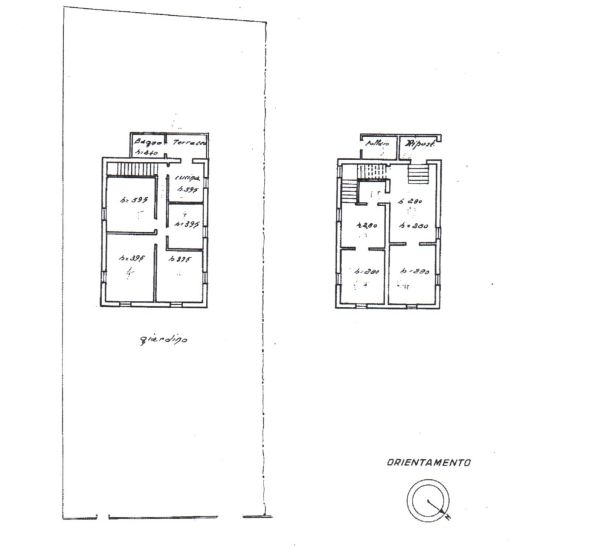
COSA: Una villa signorile con grande giardino privato di circa 800 mq. La villa si sviluppa su due livelli: al piano rialzato la parte abitativa vera e propria di circa 130 mq con cucina abitabile e verandina, tre camere da letto, soggiorno e bagno. Il piano seminterrato è di pari metratura ed attualmente è accatastato tutto come ripostiglio ma l'altezza è buona ed è finestrato, dunque, si può verificare di trasformare in abitativo anche questo piano. Il giardino è principalmente davanti alla villa. Sulla parte dietro c'è un gazebo e tettoia per auto.
LATO POSITIVO: E' una rara villa signorile in quella posizione così centrale e con il grande giardino

Punti di forza dell'immobile:

  • Giardino esclusivo
  • Vicino al mare
  • Luminoso

Informazioni principali

  • Vendita
  • Villa unifamiliare
  • 238 mq
  • 6 (3 camere da letto, 3 altro), 1 bagno, cucina abitabile
  • Multipiano (su 2 piani)
  • Abitabile, classe immobile signorile
  • Arredato
  • No
  • Nord, Ovest, Est, Cavedio
  • 134908

Altre caratteristiche

  • Terrazzo
  • Balcone
  • Cantina
  • Infissi esterni
  • Giardino Privato
  • Arredato

Costi

  • € 980.000
  • A/7

Efficienza energetica

  • 1922
  • Abitabile
  • Autonomo, a radiatori, alimentato a metano
  • Assente
  • In attesa di certificazione

Planimetria

Video

Indirizzo e mappa

Fano - Viale I Maggio, 75