Negozio in affitto, via Eugenio Torelli Viollier 63, Pietralata, Roma

€ 2.500
  • 126 mq superficie
  • 2 locali locali
  • T piano piano
  • 126 mq superficie
  • 2 locali locali
  • T piano piano

Descrizione

Situato in una posizione strategica nel cuore di Roma, questo negozio si trova in Via Eugenio Torelli Viollier, una zona ben collegata e facilmente accessibile.
La posizione è ideale per chi desidera stabilire un'attività commerciale in un'area vivace e frequentata, con un buon passaggio pedonale e una clientela potenziale variegata. La vicinanza a servizi pubblici e altre attività commerciali rende questo immobile particolarmente interessante per chi cerca visibilità e comodità.

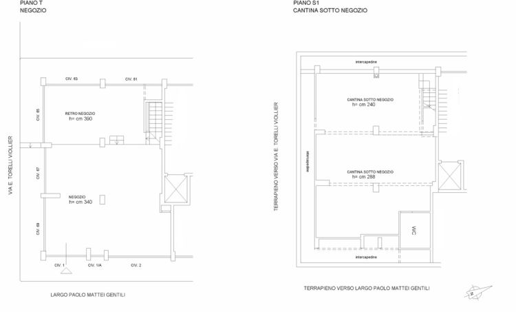
L'immobile si estende su una superficie commerciale di circa 126 metri quadrati, offrendo ampi spazi per l'allestimento e la personalizzazione secondo le esigenze dell'attività.
Al piano seminterrato l'immobile dispone di ulteriori 126 Mq circa, molto comodi per zona stoccaggio. Il negozio dispone di ampie vetrine ed essendo angolare ha un'ampia visibilità .

La disposizione interna è funzionale e comprende un bagno, elemento essenziale per il comfort di clienti e personale. Gli spazi sono ben distribuiti, permettendo una gestione ottimale delle attività quotidiane.

Questo negozio è disponibile per l'affitto e rientra nella categoria catastale C/1, tipica degli immobili destinati ad attività commerciali. Essendo libero, è pronto per essere occupato immediatamente, offrendo l'opportunità di avviare rapidamente la propria attività. La combinazione di una posizione privilegiata, spazi ben organizzati e la disponibilità immediata rende questo immobile una scelta eccellente per imprenditori e commercianti alla ricerca di un locale a Roma.

Possibilità di predisporre una canna fumaria.

Punti di forza dell'immobile:

  • possibilità di canna fumaria
  • ampia metratura
  • posizione strategica

Informazioni principali

  • Affitto - Intero immobile
  • Negozio
  • 126 mq
  • 2 (2 altro)
  • 8 piani
  • Da ristrutturare, classe immobile media
  • Arredato
  • No
  • Nord, Sud, Est
  • 163278

Altre caratteristiche

  • Infissi esterni
  • Arredato

Costi

  • € 2.500
  • C/1, rendita € 2.935
  • 6+6
  • € 5.000

Efficienza energetica

  • 1980
  • Da ristrutturare
  • Assente
  • Assente
  • G
  • 175 kWh/m2anno
A
B
C
D
E
F
G

Planimetria

Virtual Tour

Video

Indirizzo e mappa

Roma - Via Eugenio Torelli Viollier, 63, Pietralata

Zona Pietralata

Annunci simili