Trilocale in vendita, via Soldato M. Mastrangelo 2, Grumo Appula
- 150 mq superficie
- 3
locali
- T
piano
- 1
bagni
- 1
p. auto

Descrizione
L'appartamento in vendita si trova in Via Soldato M. Mastrangelo a Grumo Appula, una località che offre un contesto tranquillo e ben servito. Situato in un edificio di un solo piano, l'immobile gode di una posizione angolare con due lati liberi, garantendo una buona luminosità e una piacevole ventilazione naturale. La zona è facilmente accessibile e dotata di servizi che facilitano la vita quotidiana, rendendola ideale per famiglie o coppie in cerca di un ambiente sereno.
L'appartamento si estende su una superficie commerciale di circa 150 metri quadrati e presenta una disposizione interna ben organizzata. All'interno troviamo un ampio salone, due camere da letto spaziose, una cucina abitabile che offre ampio spazio per pranzi e cene in famiglia, e un bagno funzionale. La presenza di un balcone e di un terrazzo aggiunge valore all'immobile, offrendo spazi esterni dove rilassarsi o coltivare piante. L'immobile è completo di una cantina, utile per lo stoccaggio. Il giardino privato rappresenta un ulteriore punto di forza, offrendo un'area verde esclusiva per momenti di relax all'aperto.
L'immobile è in buono stato e dotato di infissi esterni in doppio vetro e PVC, che garantiscono un buon isolamento termico e acustico. La sicurezza è assicurata da una porta blindata. Il riscaldamento è autonomo, con impianto a radiatori alimentato a metano, mentre l'aria condizionata è predisposta per funzionare sia in modalità freddo che caldo, anche se attualmente l'impianto di climatizzazione è assente. L'appartamento è libero e non arredato, offrendo la possibilità di personalizzarlo secondo i propri gusti e necessità. L'accesso per disabili è garantito, rendendo l'immobile adatto a tutte le esigenze. La categoria catastale è A/3, confermando la destinazione residenziale dell'immobile.
Punti di forza dell'immobile:
- angolare
- luminoso
- buone condizioni
Informazioni principali
- Vendita - Piena proprietà
- Appartamento
- 150 mq
- 3 (2 camere da letto, 1 altro), 1 bagno, cucina abitabile
- 1 posto auto
- Multipiano di 1 piano
- Buono, classe immobile media
- Non Arredato
- Doppio vetro / PVC
- No
- Sud
- 165454
Altre caratteristiche
- Balcone
- Cantina
- Porta blindata
- Impianto tv
- Fibra Ottica
- Infissi esterni
- Accesso per disabili
- Giardino Privato
- Non Arredato
Costi
- € 175.000
- A/3, rendita € 412
Efficienza energetica
- 1970
- Buono
- Autonomo, a radiatori, alimentato a metano
- Assente
- Freddo/Caldo
- E
- 148 kWh/m2anno
- € 200/anno
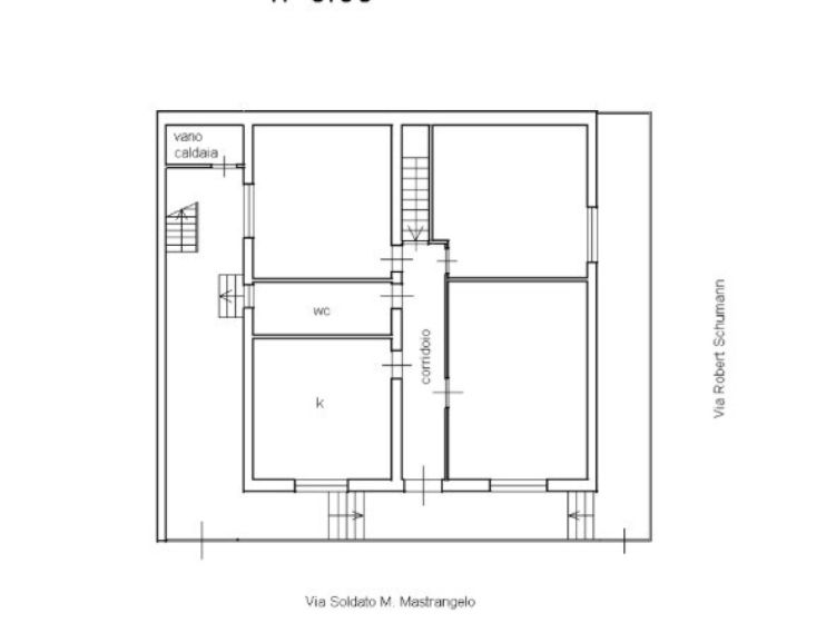
Planimetria
Virtual Tour
Video
Indirizzo e mappa
Grumo Appula - Via Soldato M. Mastrangelo, 2