Trilocale in vendita, via Nocera Inferiore 63, Borghesiana, Roma
- 66 mq superficie
- 3
locali
- 3
piano
- 1
bagni

Descrizione
Colle Prenestino.
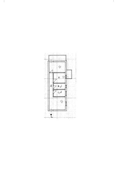
Vendesi appartamento trilocale di circa 66 MQ da ristrutturare in piccolo condominio.
L'immobile è composto da: corridoio, soggiorno, camera da letto, studiolo, cucina abitabile, servizio, due balconi e cantina posta nel piano S1.
Situato al terzo e ultimo piano di un edificio di tre piani senza ascensore, l'immobile gode di una posizione angolare che garantisce una buona luminosità grazie ai due lati liberi.
Dispone di infissi in alluminio con doppio vetro, zanzariere e il riscaldamento è autonomo.
Sito in una zona ben collegata e servita da diverse attività commerciali e servizi essenziali.
Questa proprietà rappresenta un'opportunità interessante per chi desidera investire in una zona dinamica della capitale, con la possibilità di creare un ambiente abitativo su misura.
Informazioni principali
- Vendita - Piena proprietà
- Appartamento
- 66 mq
- 3 (1 camera da letto, 2 altro), 1 bagno, cucina abitabile
- 3° di 3
- Da ristrutturare, classe immobile media
- Non Arredato
- Doppio vetro / Metallo
- No
- Ovest, Sud
- 164710
Altre caratteristiche
- Balcone
- Cantina
- Cablato
- Impianto tv
- Fibra Ottica
- Infissi esterni
- Non Arredato
Costi
- € 115.000
- A/4, rendita € 604
- € 65/mese
Efficienza energetica
- 1980
- Da ristrutturare
- Autonomo, a radiatori, alimentato a gas
- Assente
- G
- 175 kWh/m2anno
Planimetria
Indirizzo e mappa
Roma - Via Nocera Inferiore, 63, Borghesiana
Zona Borghesiana