Trilocale in affitto, via Enrico Cialdini 34, Affori, Milano
- 104 mq superficie
- 3
locali
- 6
piano
- 2
bagni
- 1
box

Descrizione
Situato in una delle zone più dinamiche di Milano, l'appartamento in affitto si trova in Via Enrico Cialdini. La posizione è strategica, offrendo un facile accesso ai principali servizi e trasporti pubblici della città. L'edificio, che si sviluppa su più di dieci piani, è dotato di due ascensori e garantisce un accesso agevole anche per persone con disabilità. La presenza di un cancello elettrico e di un videocitofono assicura un buon livello di sicurezza e privacy.
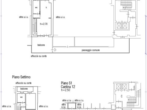
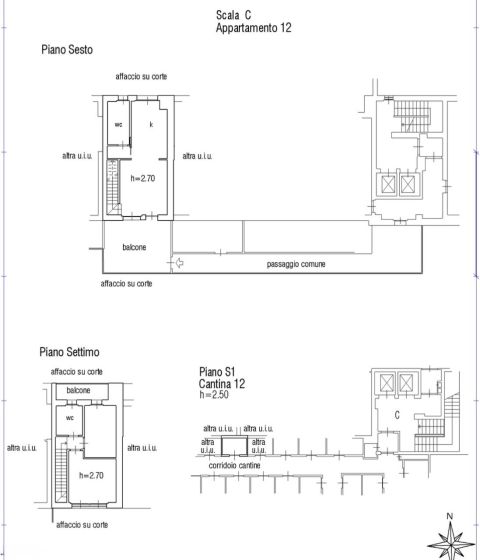
L'immobile, situato al sesto piano, si estende su due livelli zona notte/giorno, per una superficie commerciale di circa 80 metri quadrati. È composto da due camere da letto, ideali per una famiglia o per chi desidera uno spazio aggiuntivo per un ufficio o una stanza per gli ospiti. La cucina è a vista, integrata armoniosamente con la zona giorno, creando un ambiente accogliente e funzionale. Sono presenti due bagni per piano, che offrono comodità e praticità per gli abitanti. Un balcone e uno spettacolare terrazzo completano l'offerta, fornendo spazi esterni dove rilassarsi e godere della meravigliosa vista. L'appartamento è arredato con gusto e dotato di infissi esterni in doppio vetro e PVC, che garantiscono un buon isolamento termico e acustico.
Totale locazione 1.750 € (1.400 canone + 350 spese condominiali) possibilità di Box a 100 €.
L'immobile è in ottimo stato e dispone di riscaldamento centralizzato a pavimento alimentato a metano, assicurando un comfort termico ottimale durante i mesi più freddi. Il climatizzatore autonomo con impianto freddo/caldo offre ulteriore comfort durante tutto l'anno. La presenza di una porta blindata aumenta la sicurezza dell'appartamento. Possibilità di un box auto a 100 euro al mese in più e una cantina che è inclusa, offrono uno spazio aggiuntivo per il parcheggio e lo stoccaggio.
Classe energetica A1
L'appartamento è libero e pronto per essere abitato, rappresentando un'opportunità ideale per chi cerca una soluzione abitativa moderna e ben collegata nel cuore di Milano.
Punti di forza dell'immobile:
- Piano alto e terrazzo con vista spettacolare
- Mezzi dí trasporto molto comodi
- Ottimo appartamento su due livelli
Informazioni principali
- Affitto - Intero immobile
- Appartamento
- 104 mq
- 3 (2 camere da letto, 1 altro), 2 bagni, cucina a vista
- 1 box/garage
- 6° di 10, con ascensore
- Ottimo, classe immobile media
- Arredato
- Doppio vetro / PVC
- No
- Ovest, Est
- 164058
Altre caratteristiche
- Terrazzo
- Balcone
- Ascensore
- Cantina
- Cablato
- Cancello elettrico
- Videocitofono
- Porta blindata
- Impianto tv
- Fibra Ottica
- Infissi esterni
- Accesso per disabili
- Arredato
Costi
- € 1.400
- A/2
- € 350/mese
- 4+4
- € 4.200
Efficienza energetica
- 2010
- Ottimo
- Centralizzato, a pavimento, alimentato a metano
- Autonomo
- Freddo/Caldo
- A+
- 48,71 kWh/m2anno
Planimetria
Indirizzo e mappa
Milano - Via Enrico Cialdini, 34, Affori
Zona Affori