Villa in vendita, via Fontanefredde 6/A, Fontanefredde, Montagna

€ 1.600.000
  • 338 mq superficie
  • 5 locali locali
  • 2 piano piano
  • 2 bagni bagni
  • 2 p. auto p. auto
  • 338 mq superficie
  • 5 locali locali
  • 2 piano piano
  • 2 bagni bagni
  • 2 p. auto p. auto

Descrizione

Situato in Via Fontanefredde a Montagna, questo elegante immobile in vendita, con una superficie commerciale di circa 338 mq, è stato progettato per offrire il massimo comfort e funzionalità.
Si trova in una posizione tranquilla e riservata, ideale per chi desidera un rifugio sereno lontano dal caos cittadino.

Inserita in un contesto residenziale di pregio, la proprietà è circondata da edifici di recente costruzione e da un paesaggio naturale che regala una vista aperta su tutti e quattro i lati.
L’edificio si sviluppa su tre piani, garantendo privacy, luminosità e un’ottima esposizione solare.

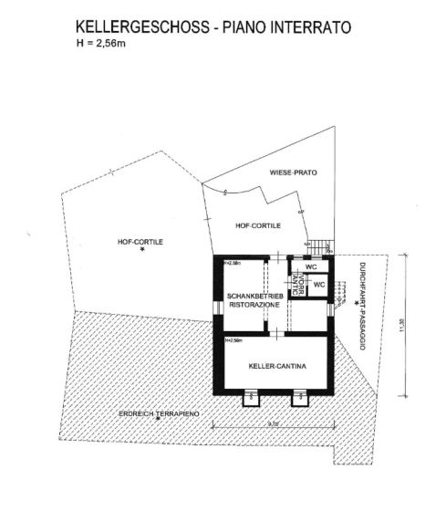
L’appartamento occupa il primo e il secondo piano, mentre al piano terra si trova una storica macelleria, ben avviata e molto apprezzata sia dai residenti sia dai turisti in cerca di prodotti tipici dell’Alto Adige. Al piano seminterrato è presente una taverna caratteristica, perfetta come spazio conviviale o per la conservazione di vini e prodotti.

All’interno, l’appartamento è composto da tre ampie camere da letto – due al primo piano ed una al secondo – ideali per una famiglia numerosa o per chi desidera una stanza aggiuntiva per ospiti o uso studio. La cucina abitabile, realizzata in open space con la zona soggiorno, è completamente attrezzata e dotata di un grande tavolo da pranzo, perfetto per accogliere numerosi ospiti. L’area living è arredata con divani e angolo TV, creando un ambiente accogliente e funzionale.

Sono presenti due bagni finestrati, moderni e ben rifiniti, uno per piano, che assicurano praticità e comfort. I balconi, situati rispettivamente al primo e al secondo piano, offrono spazi esterni privati dove rilassarsi e godere del panorama.

La taverna al piano seminterrato, ampia e versatile, può essere adattata a diverse esigenze: da sala degustazione a spazio per feste private o momenti di convivialità.

L’immobile, di nuova costruzione, è dotato di infissi in legno con triplo vetro, che garantiscono eccellente isolamento termico e acustico. La sicurezza è assicurata da porta blindata e sistema di videosorveglianza con quattro telecamere. Il riscaldamento a pavimento autonomo è alimentato a gas, mentre l’impianto di aria condizionata è predisposto per caldo e freddo.

Completano la proprietà due posti auto e un giardino privato, ideale per chi ama il verde e desidera uno spazio all’aperto per momenti di relax o attività ricreative.

Questa proprietà rappresenta un’opportunità unica per chi cerca una casa spaziosa e confortevole in una posizione privilegiata, con la possibilità di coniugare abitazione e attività redditizia.

Punti di forza dell'immobile:

  • indipendente
  • ampio e luminoso
  • comodo da raggiungere

Informazioni principali

  • Vendita - Piena proprietà
  • Villa unifamiliare
  • 338 mq
  • 5 (3 camere da letto, 2 altro), 2 bagni, cucina abitabile
  • 2 posti auto
  • 2° di 3
  • Nuovo, classe immobile signorile
  • Arredato
  • Triplo vetro / Legno
  • No
  • Nord, Ovest, Est, Sud
  • 166344

Altre caratteristiche

  • Balcone
  • Camino
  • Cantina
  • Porta blindata
  • Impianto tv
  • Fibra Ottica
  • Infissi esterni
  • Taverna
  • Armadio a muro
  • Mansarda
  • Giardino Privato
  • Arredato

Costi

  • € 1.600.000
  • A/2, rendita € 57.068

Efficienza energetica

  • 2022
  • Nuovo
  • Autonomo, a pavimento, alimentato a gas
  • Assente
  • Freddo/Caldo
  • C
  • 155 kWh/m2anno
  • € 3.000/anno
A
B
C
D
E
F
G

Planimetria

Indirizzo e mappa

Villa in vendita, via Fontanefredde 6/A, Montagna

Zona Fontanefredde