Ufficio in affitto, Piazzetta Spirito Santo, Centro storico, Pistoia

€ 3.400
  • 350 mq superficie
  • 9 locali locali
  • T piano piano
  • 2 bagni bagni
  • 350 mq superficie
  • 9 locali locali
  • T piano piano
  • 2 bagni bagni

Descrizione

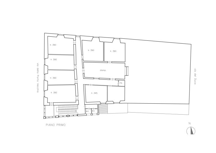
Pistoia Centro (Piazzetta Spirito Santo), in edificio storico del 1600, situato di fronte alla chiesa dei Gesuiti che da il nome all'omonima piazza, proponiamo un grande ufficio di rappresentanza situato al primo piano, composto da 8 grandi ambienti ambienti e doppi servizi, con logica distribuzione interna. La disposizione interna può essere strutturata anche in maniera diversa da quella attuale, in quanto buona parte dei muri sono tramezzature. La pavimentazione del piano terreno è è in parquet di rovere. La struttura può anche essere abbinata al piano sottostante, in quanto c'è il collegamento tramite una comoda e spaziosa scala interna. Tutti gli uffici sono dotati di impianto di climatizzazione che produce sia aria calda, sia aria fredda.
L'edificio si presenta in ottimo stato, ed è composto da due fabbricati di epoche diverse (1500/1600) e si trova nel centro storico della città, cuore pulsante di Pistoia.
Ideale per uffici di banche, aziende commerciali e per ogni attività imprenditoriale che intenda dare un'impronta di alta rappresentanza alla propria azienda

Punti di forza dell'immobile:

  • posizione strategica
  • ottimo stato
  • di pregio storico

Informazioni principali

  • Affitto - Intero immobile
  • Ufficio
  • 350 mq
  • 9 (8 camere da letto, 1 altro), 2 bagni, cucina angolo cottura
  • PianoNobile
  • Ottimo, classe immobile di lusso
  • Non Arredato
  • Vetro / Legno
  • No
  • Ovest, Est, Sud
  • 167038

Altre caratteristiche

  • Cablato
  • Reception
  • Videocitofono
  • Impianto tv
  • Fibra Ottica
  • Infissi esterni
  • Reception
  • Accesso per disabili
  • Non Arredato

Costi

  • € 3.400
  • A/10, rendita € 3.300
  • 6+6
  • € 30.000

Efficienza energetica

  • 1600
  • Ottimo
  • Autonomo, ad aria, alimentato a pompa di calore
  • Autonomo
  • Freddo/Caldo
  • F
  • 175 kWh/m2anno
A
B
C
D
E
F
G

Planimetria

Virtual Tour

Indirizzo e mappa

Ufficio in affitto, Piazzetta Spirito Santo, Pistoia

Zona Centro storico