Quadrilocale in vendita, via Leonardo da Vinci 54, Alghero

€ 250.000
  • 99 mq superficie
  • 4 locali locali
  • 1 piano piano
  • 2 bagni bagni
  • 99 mq superficie
  • 4 locali locali
  • 1 piano piano
  • 2 bagni bagni

Descrizione

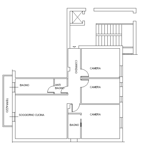
Proponiamo in vendita un elegante quadrilocale di circa 99 m², completamente ristrutturato a nuovo, situato al primo piano di un piccolo e tranquillo condominio in Via Leonardo da Vinci, posizione strategica a pochi passi dai principali servizi e a soli 5 minuti da Piazza Sulis.

La luminosa zona giorno con cucina living open space, impreziosita da una moderna illuminazione a soffitto con faretti incassati e striscia LED, affaccia direttamente sulla terrazza, garantendo ottima luminosità naturale. Il pavimento in gres effetto legno dona calore e continuità agli ambienti.

La zona notte comprende tre camere da letto, tutte rivolte verso il cortile interno, assicurando massimo silenzio e privacy; particolarmente preziosa la camera matrimoniale con bagno privato, completo di doccia, un vero valore aggiunto che offre comfort, indipendenza e praticità, ideale per chi ama avere uno spazio riservato e funzionale all’interno della propria abitazione.

Il bagno principale, finestrato e completo di ampia doccia e scalda salviette, è collegato ad un comodo spazio lavanderia.

L’immobile dispone di infissi in PVC con vetro camera e predisposizione per l’impianto a pompe di calore.

Ottimo sia come investimento che come abitazione principale, grazie alla posizione, alla qualità della ristrutturazione e alla funzionalità degli spazi.

Punti di forza dell'immobile:

  • ristrutturato
  • centro
  • bagno in camera

Informazioni principali

  • Vendita - Piena proprietà
  • Appartamento
  • 99 mq
  • 4 (3 camere da letto, 1 altro), 2 bagni, cucina a vista
  • 1° di 3
  • Ristrutturato, classe immobile media
  • Non Arredato
  • Doppio vetro / PVC
  • No
  • Ovest, Est, Sud
  • 167516

Altre caratteristiche

  • Balcone
  • Cablato
  • Porta blindata
  • Fibra Ottica
  • Infissi esterni
  • Non Arredato

Costi

  • € 250.000
  • A/3, rendita € 362
  • € 30/mese

Efficienza energetica

  • 1975
  • Ristrutturato
  • Assente
  • Predisposizione impianto
  • B
  • 175 kWh/m2anno
A
B
C
D
E
F
G

Planimetria

Virtual Tour

Indirizzo e mappa

Quadrilocale in vendita, via Leonardo da Vinci 54, Alghero