Terreno industriale o artigianale in vendita, Strada Provinciale Sassari - Argentiera 77, Sassari, Sassari

€ 63.000
  • 4000 mq superficie
  • T piano piano
  • 4000 mq superficie
  • T piano piano

Descrizione

Proponiamo in vendita terreno edificabile di circa 4.000 mq, situato in zona tranquilla e immersa nel verde, a pochi minuti dalla città di Sassari, più esattamente in sv Tignoni, Monti Minuddu.

Il lotto è dotato di progetto approvato per la realizzazione di un fabbricato categoria C2 (non abitativo), con la seguente composizione:

Circa 110 mq edificabili, suddivisi in due locali

Pergola/Veranda di circa 60 mq

Soluzione perfetta come deposito, magazzino agricolo o struttura di supporto per attività rurali, ideale anche come punto d’appoggio per vivere e trascorrere il tempo in campagna, nel pieno rispetto della destinazione d’uso vigente.

Il terreno presenta uliveto e alberi da frutto ed è caratterizzato da accesso comodo, in prossimità della strada principale.

Contesto riservato ma facilmente raggiungibile, ideale per chi cerca un terreno già pronto per edificare in un’area verde e vicina alla città.

Punti di forza dell'immobile:

  • terreno
  • nuova costruzione
  • pressi sassari

Informazioni principali

  • Vendita - Piena proprietà
  • Terreno industriale o artigianale
  • 4000 mq
  • Sud
  • 110 mq
  • 270 m
  • 160432

Altre caratteristiche

  • Infissi esterni

Costi

  • € 63.000
  • T, rendita € 0

Efficienza energetica

A
B
C
D
E
F
G

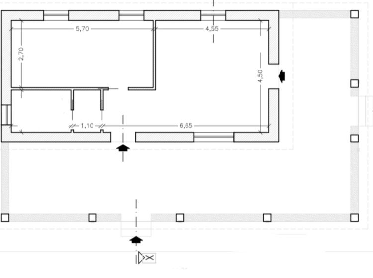
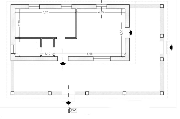
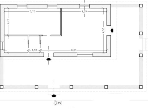
Planimetria

Indirizzo e mappa

Terreno industriale o artigianale in vendita, Strada Provinciale Sassari - Argentiera 77, Sassari

Zona Sassari