Negozio in vendita, via Vittorio Veneto 126, Ruffano

€ 259.000
  • 350 mq superficie
  • T piano piano
  • 2 bagni bagni
  • 20 p. auto p. auto
  • 350 mq superficie
  • T piano piano
  • 2 bagni bagni
  • 20 p. auto p. auto

Descrizione

Locale Commerciale in Vendita - Alta Visibilità e Versatilità!

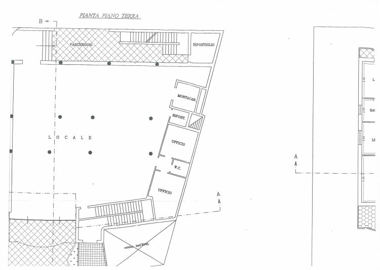
Scopri un'opportunità unica nel cuore della città! Questo locale commerciale di circa 350 mq, situato al piano terra, offre un'ottima visibilità grazie alla sua posizione strategica su una delle arterie principali del paese. CON DOPPIO ACCESSO, SIA PEDONALE DA VITTORIO VENETO CHE CARROZZABILE ANCHE CON AUTOMEZZI DI GROSSE DIMENSIONI DA VIA XX SETTEMBRE, E' IDEALE PER DIVERSE ATTIVITA' COMMERCIALI.

L'immobile è dotato di due uffici, due bagni e un pratico ripostiglio. La sicurezza è garantita da un impianto di rilevazione fumi, un sistema di allarme e un impianto antincendio. La porta d'accesso principale è automatica, rendendo l'ingresso ancora più comodo. Tutte le utenze sono già allacciate e l'immobile è in buono stato di conservazione, pronto per essere utilizzato senza necessità di interventi.

In aggiunta, è disponibile un locale seminterrato di 585 mq, con un'altezza di 5,90 m, comunicante tramite scala interna e con rampa di accesso larga 5 mt. Questo spazio può essere utilizzato per deposito di prodotti infiammabili o come ulteriore area operativa. Non perdere l'occasione di investire in un locale versatile e funzionale, perfetto per soddisfare le esigenze della tua attività!

Punti di forza dell'immobile:

  • Ubicazione centrale rispetto a servizi e negozi cittadini
  • Ampi spazi con possibilità di molteplici destinazioni
  • Locale interrato e piano terra con accesso automezzi cassonati.

Informazioni principali

  • Vendita - Piena proprietà
  • Negozio
  • 350 mq
  • 0 (), 2 bagni
  • 20 posti auto
  • Piano terra (su 2 piani)
  • Buono, classe immobile signorile
  • Non Arredato
  • Doppio vetro / Metallo
  • No
  • Nord, Ovest, Est
  • 167276

Altre caratteristiche

  • Terrazzo
  • Cablato
  • Impianto di allarme
  • Cancello elettrico
  • Videocitofono
  • Impianto tv
  • Infissi esterni
  • Accesso per disabili
  • Non Arredato

Costi

  • € 259.000
  • C/1, rendita € 6.417

Efficienza energetica

  • 1994
  • Buono
  • Assente
  • Assente
  • In attesa di certificazione

Planimetria

Indirizzo e mappa

Negozio in vendita, via Vittorio Veneto 126, Ruffano