Stabile o palazzo in vendita, Traversa Ammiraglio Ruggiero, Lauria

€ 876.000
  • 1320 mq superficie
  • 56 locali locali
  • 3 piano piano
  • 1320 mq superficie
  • 56 locali locali
  • 3 piano piano

Descrizione

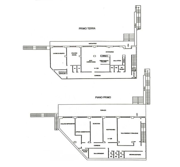
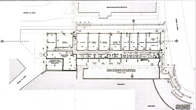
A Lauria, in posizione strategica e logistica, si propone la vendita di un asset immobiliare di circa 1.320 mq complessivi, inserito in un edificio di quattro piani.

La proprietà si distingue per una configurazione architettonica singolare che, sfruttando il dislivello del terreno, garantisce accessi indipendenti da via Ammiraglio Ruggiero, dalla sua traversa e da contrada Parco Carroso. Tale permeabilità assicura una gestione autonoma delle diverse unità e dei relativi flussi.

L'immobile è suddiviso in quattro porzioni funzionali: due unità A/10 di circa 576 mq e 194 mq (quest’ultima con contratto di locazione in fase di stipula che garantisce rendita immediata), una superficie di circa 494 mq in categoria B/4, già sede del Centro per l’impiego, e un'unità residenziale A/3 di circa 48 mq.

La costruzione, risalente agli anni novanta, presenta una struttura solida con interni in ottime condizioni manutentive, pronti all'uso, mentre il prospetto esterno richiede interventi di ripristino delle finiture. Gli ambienti sono ampi, estremamente luminosi e silenziosi. La dotazione tecnica include infissi in metallo con vetrocamera, riscaldamento a radiatori e piena conformità alle norme sull'abbattimento delle barriere architettoniche. La zona è facilmente raggiungibile e servita da un ampio parcheggio pubblico limitrofo.

Il prezzo di vendita è di 876.000 euro. L’operazione rappresenta un investimento di alto profilo grazie al costo al metro quadrato competitivo e alla versatilità delle categorie catastali, che permettono molteplici strategie di messa a reddito nei settori direzionale, pubblico o formativo. La riqualificazione della facciata offre inoltre l'opportunità di incrementare il valore patrimoniale del cespite tramite un ammodernamento estetico ed energetico, rendendolo rispondente ai moderni standard di rappresentanza.

Punti di forza dell'immobile:

  • Ottima posizione
  • Ampio e luminoso
  • Versatile

Informazioni principali

  • Vendita - Piena proprietà
  • Stabile o palazzo
  • 1320 mq
  • 56 (56 altro)
  • 3° di 4, senza ascensore
  • Buono, classe immobile media
  • Arredato
  • Doppio vetro / Metallo
  • Nord, Ovest, Est, Sud
  • 168974

Altre caratteristiche

  • Terrazzo
  • Infissi esterni
  • Accesso per disabili
  • Arredato

Costi

  • € 876.000
  • A/10, rendita € 7.660

Efficienza energetica

  • 1990
  • Buono
  • Autonomo, a radiatori, alimentato a metano
  • Autonomo
  • Freddo/Caldo
  • In attesa di certificazione

Planimetria

Indirizzo e mappa

Stabile o palazzo in vendita, Traversa Ammiraglio Ruggiero, Lauria