Villa in vendita, Contrada Feudo da Sole 23, Feudo da Sole, Basciano

€ 115.000
  • 183 mq superficie
  • 6 locali locali
  • 2 piano piano
  • 3 bagni bagni
  • 1 box box
  • 183 mq superficie
  • 6 locali locali
  • 2 piano piano
  • 3 bagni bagni
  • 1 box box

Descrizione

Nel Comune di Basciano (TE), in Contrada Feudo da Sole, proponiamo in vendita una casa indipendente degli anni ’80, immersa nel verde e circondata da ampi spazi privati.
La proprietà è completamente recintata e gode di grande privacy, con ampio giardino e terreni per circa 5,80 ettari, ideali per chi ama la natura, desidera spazio o vuole avviare un’attività agricola o hobbistica.
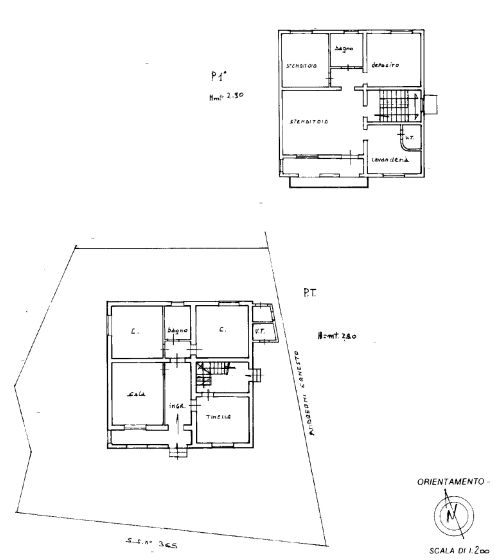
L’abitazione si sviluppa su due livelli: al piano terra si trova la zona giorno, mentre al piano primo è organizzata la zona notte con tre camere da letto e due bagni. Gli ambienti sono ampi e luminosi, adatti a una famiglia o a chi cerca una casa solida e indipendente da personalizzare nel tempo.
Completano la proprietà un garage di generose dimensioni, un lavatoio coperto esterno e un piccolo bagno esterno, elementi che rendono la casa particolarmente funzionale anche per la vita all’aperto e la gestione degli spazi esterni.
Una soluzione ideale per chi cerca tranquillità, indipendenza e grandi spazi, senza rinunciare alla comodità dei collegamenti e dei servizi principali.

Per maggiori informazioni o per fissare una visita, contattaci.

Punti di forza dell'immobile:

  • #CasaIndipendente
  • #VivereNelVerde
  • #SpazioESerenità

Informazioni principali

  • Vendita - Piena proprietà
  • Villa unifamiliare
  • 183 mq
  • 6 (4 camere da letto, 2 altro), 3 bagni, cucina abitabile
  • 1 box/garage
  • 2° di 2
  • Abitabile, classe immobile media
  • Arredato
  • Doppio vetro / Legno
  • No
  • Nord, Ovest, Est, Sud, Cavedio
  • 161200

Altre caratteristiche

  • Terrazzo
  • Balcone
  • Cantina
  • Impianto tv
  • Infissi esterni
  • Giardino Privato
  • Arredato

Costi

  • € 115.000
  • A/3, rendita € 325

Efficienza energetica

  • 1976
  • Abitabile
  • Autonomo, a radiatori, alimentato a metano
  • Autonomo
  • F
  • 175 kWh/m2anno
A
B
C
D
E
F
G

Planimetria

Indirizzo e mappa

Basciano - Contrada Feudo da Sole, 23, Feudo da Sole

Zona Feudo da Sole