Stabile o palazzo in vendita, via Ludovico Ariosto, Spongano

€ 290.000
  • 277 mq superficie
  • 2 locali locali
  • T piano piano
  • 2 bagni bagni
  • 4 p. auto p. auto
  • 277 mq superficie
  • 2 locali locali
  • T piano piano
  • 2 bagni bagni
  • 4 p. auto p. auto

Descrizione

Situato nel tranquillo comune di Spongano, questo immobile si trova in Via Ludovico Ariosto, una zona che offre un contesto sereno e riservato. La posizione è ideale per chi cerca un ambiente lontano dal caos cittadino, pur rimanendo ben collegato alle principali vie di comunicazione.

L'immobile è libero su quattro lati, garantendo così una buona luminosità e un'ottima ventilazione naturale.

L'immobile, attualmente classificato come magazzino, offre ampi spazi da personalizzare secondo le proprie esigenze infatti è potenzialmente idoneo a molteplici usi sia di tipo ricettivo, commerciale o industriale.

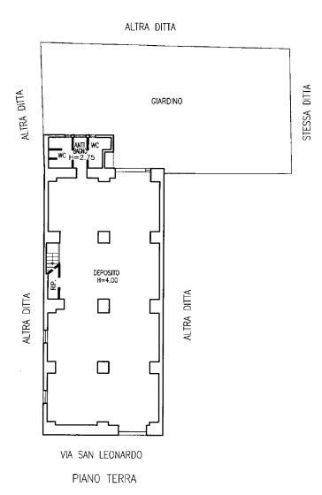
L'immobile si sviluppa interamente al piano terra, la superficie utile del locale misura circa 277 mq. Al locale è annesso un corpo servizi comprendenti due wc completi di docce, indispensabili, nel caso di utilizzo del locale a destinazione produttiva, commerciale o altro.

La proprietà comprende anche un terreno edificabile confinante dell'estensione di circa 250 mq, utilizzabile per ampliare la struttura esistente o crearne una nuova.

Ulteriori dettagli includono la presenza di posti auto, un vantaggio significativo per chi necessita di spazio per veicoli o per ospiti.

L'immobile non è arredato, permettendo di arredarlo secondo il proprio stile personale.

Non è presente un sistema di riscaldamento né un climatizzatore, aspetti che possono essere considerati durante la ristrutturazione per migliorare il comfort abitativo.

L'accesso per disabili è garantito, rendendo l'immobile adatto a tutte le esigenze di mobilità.

Questo immobile rappresenta un'opportunità unica per chi desidera investire in una proprietà da personalizzare in una zona tranquilla e ben servita.

Punti di forza dell'immobile:

  • Ubicazione centrale rispetto a servizi e negozi cittadini.
  • Fabbricato potenzialmente adatto a molteplici destinazioni.
  • Disponibilità di terreno edificabile per eventuali ampliamenti.

Informazioni principali

  • Vendita - Piena proprietà
  • Stabile o palazzo
  • 277 mq
  • 2 (2 altro), 2 bagni
  • 4 posti auto
  • Piano terra di 1 piano
  • Da ristrutturare, classe immobile media
  • Non Arredato
  • Vetro / Metallo
  • No
  • Nord, Ovest, Est, Sud
  • 165332

Altre caratteristiche

  • Terrazzo
  • Infissi esterni
  • Accesso per disabili
  • Giardino Privato
  • Non Arredato

Costi

  • € 290.000
  • C/2, rendita € 141

Efficienza energetica

  • 1940
  • Da ristrutturare
  • Assente
  • Assente
  • In attesa di certificazione

Planimetria

Virtual Tour

Indirizzo e mappa

Stabile o palazzo in vendita, via Ludovico Ariosto, Spongano