Terratetto unifamiliare in vendita, via M. Giangreco 48, Ruffano

€ 99.000
  • 190 mq superficie
  • 7 locali locali
  • T piano piano
  • 1 bagni bagni
  • 190 mq superficie
  • 7 locali locali
  • T piano piano
  • 1 bagni bagni

Descrizione

Situato nel cuore di Ruffano, caratteristico paese nel Sud Salento, nel cuore del centro storico, proponiamo in vendita una tipica casa salentina indipendente, di circa 190 mq, con suggestive volte a stella, elementi autentici dell'architettura salentina.

Questo terratetto unifamiliare si trova in Via M. Giangreco, una posizione che offre tranquillità e un contesto residenziale riservato.

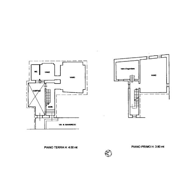
L'edificio si sviluppa su tre livelli, con due ingressi indipendenti sulla facciata principale, che apre su una scala interna.

La proprietà è libera su tre lati, garantendo una buona esposizione alla luce naturale.

L'edificio attualmente è composto da un totale di 7 vani destinati a cucina, camera da letto, un bagno e vari depositi.

L'immobile è attualmente da ristrutturare, offrendo l'opportunità di personalizzare gli spazi secondo le proprie esigenze, gusti ed in funzione dell'uso che si intende attribuire all'edificio.

Non è presente un sistema di riscaldamento né un climatizzatore, aspetti che possono essere considerati durante la ristrutturazione.

L'edificio viene venduto non arredato. La categoria catastale è A/4, tipica delle abitazioni di tipo economico.

Questa proprietà rappresenta un'opportunità interessante per chi desidera investire in una casa da personalizzare nel cuore del Salento e costituisce un'opportunità ideale per chi desidera recuperare e valorizzare un immobile autentico, mantenendo il fascino della tradizione salentina con la possibilità di personalizzare gli ambienti.

Ottime possibilità di rendimento nel caso si intenda mettere a reddito l'edificio destinandolo ad affitti brevi, B&B o altro.

La posizione del comune di Ruffano è centrale, a ridosso delle Serre Salentine, a pochi chilometri da Lecce, Gallipoli, Otranto, Santa Maria di Leuca e dall'aeroporto di Brindisi.

Punti di forza dell'immobile:

  • Ubicazione centrale rispetto a servizi e negozi cittadini
  • Zona altamente turistica a pochi chilometri dalle spiagge salentine
  • Edificio con ampie possibilità di adattamento e personalizzazione

Informazioni principali

  • Vendita - Piena proprietà
  • Terratetto unifamiliare
  • 190 mq
  • 7 (1 camera da letto, 6 altro), 1 bagno, cucina abitabile
  • Edificio (su 3 piani)
  • Da ristrutturare, classe immobile economico
  • Non Arredato
  • Vetro / Legno
  • No
  • Nord, Ovest, Est
  • 180224

Altre caratteristiche

  • Terrazzo
  • Balcone
  • Camino
  • Cablato
  • Impianto tv
  • Infissi esterni
  • Non Arredato

Costi

  • € 99.000
  • A/4, rendita € 224

Efficienza energetica

  • 1964
  • Da ristrutturare
  • Assente
  • Assente
  • In attesa di certificazione

Planimetria

Virtual Tour

Video

Indirizzo e mappa

Terratetto unifamiliare in vendita, via M. Giangreco 48, Ruffano