Attico in vendita, via Nazionale 5, Bellante

€ 135.000
  • 141 mq superficie
  • 5 locali locali
  • A piano piano
  • 2 bagni bagni
  • 3 p. auto p. auto
  • 141 mq superficie
  • 5 locali locali
  • A piano piano
  • 2 bagni bagni
  • 3 p. auto p. auto

Descrizione

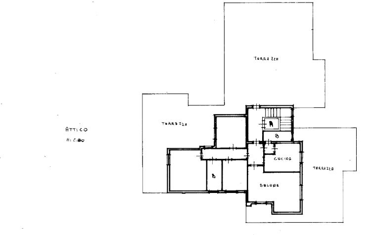
Ampio appartamento panoramico con grandi terrazzi e lastrico solare di proprietà, in posizione strategica e servitissima, nel Comune di Bellante.
Proponiamo in vendita ampio appartamento di circa 140 mq, situato al quarto piano di una palazzina in Via Nazionale, a pochi minuti dal casello autostradale e lungo la principale arteria che collega Teramo alla costa adriatica.
L’immobile si distingue per spazi generosi, grande luminosità e una vista panoramica aperta sulle colline circostanti. Spazi esterni e valore aggiunto, 3 ampie aree esterne / terrazzi per circa 291 mq. totalmente vivibili e personalizzabili, ideali per zona relax, pranzi all’aperto, area verde o spazi hobby.
Panorama suggestivo sulle colline, con affacci aperti e ottima esposizione.
Lastrico solare di proprietà, elemento raro e di grande valore, sfruttabile per efficientamento energetico, installazione di pannelli solari, impianti per la climatizzazione o soluzioni tecnologiche evolute.
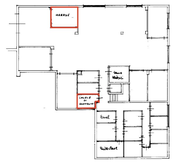
Posti auto esterni, garage e fondaco di pertinenza ideale come deposito, dispensa o spazio di servizio.
A pochi minuti dal casello autostradale, posizione strategica tra Teramo e la costa adriatica.
Tutti i principali servizi nelle immediate vicinanze, inclusi centro commerciale, negozi, attività e collegamenti principali Grazie al piano alto, l’appartamento risulta estremamente luminoso, arioso e panoramico, rappresentando una soluzione ideale per famiglie, per chi cerca grandi spazi esterni, o come investimento immobiliare di qualità.

Immobile regolarmente accatastato.

Punti di forza dell'immobile:

  • #UltimoPianoPanoramico
  • #GrandiTerrazzi
  • #PosizioneStrategica

Informazioni principali

  • Vendita
  • Attico
  • 141 mq
  • 5 (3 camere da letto, 2 altro), 2 bagni, cucina abitabile
  • 1 box/garage
  • 2 posti auto
  • 4° di 4, con ascensore
  • Ristrutturato, classe immobile media
  • Parzialmente Arredato
  • No
  • Nord, Est, Sud, Cavedio
  • 181088

Altre caratteristiche

  • Terrazzo
  • Ascensore
  • Cantina
  • Cablato
  • Impianto tv
  • Fibra Ottica
  • Infissi esterni
  • Accesso per disabili
  • Parzialmente Arredato

Costi

  • € 135.000
  • A/2, rendita € 523
  • € 109/mese

Efficienza energetica

  • 1980
  • Ristrutturato
  • Autonomo, a radiatori, alimentato a metano
  • Autonomo
  • Freddo/Caldo
  • E
  • 175 kWh/m2anno
  • € 1.200/anno
A
B
C
D
E
F
G

Planimetria

Indirizzo e mappa

Attico in vendita, via Nazionale 5, Bellante