Casale in vendita, Strada 34, Giarre

€ 690.000
  • 1069 mq superficie
  • 15 locali locali
  • T piano piano
  • 2 bagni bagni
  • 11 p. auto p. auto
  • 1069 mq superficie
  • 15 locali locali
  • T piano piano
  • 2 bagni bagni
  • 11 p. auto p. auto

Descrizione

Proprietà immobiliare ideale per struttura turistica ricettiva, un relais-chateau, SPA resort, ristorante, ecc. realizzabile con progetto europeo, finanza agevolata.
Antico casale del 1897 ubicato nel Comune di Giarre, raggiungibile in 10 minuti di auto dall'uscita casello A18. Circondato da oltre 2000 mq di parco con alberi di alto fusto e piante ornamentali e da frutta. Terrazze panoramiche con vista aerea da nord a sud della costa, sino a Taormina. Anche l'Etna si fa ammirare nella sua maestosità. L'edificio principale è costituito da due livelli, piano terra di circa 367 mq, e piano primo di circa 302 mq. Le pavimentazioni sono alcune in cotto, altre in cementine colorate originali che impreziosiscono gli ambienti.
La complessiva superficie coperta pari a 1100mq ca. è così distribuita:
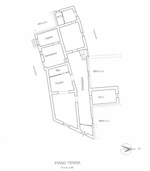
PIANO TERRA 367 mq ca.: ENORME SALONE con CAMINO, grande e spaziosa cucina con zona living annessa, stanza rustica con forno a pietra, stanza da biliardo, bagno del piano, e accesso al palmento ( piano S1).
PIANO PRIMO 302 mq ca.: scala interna, cucina, bagno, salone, patio a vetri in veranda, 4 camere da letto, saloni che disimpegnano.
CANTINA e DEPOSITI per ulteriori 400 mq complessivi ( interamente da riattare, ma con tetti integrali esistenti).

La zona sul retro del casale è piantumata con prato che circonda una piscina dalla sagoma a ELLE. Il parcheggio all'interno della proprietà è agevole grazie alla corsia di ingresso carrabile, e al piazzale fronte casa pavimentato.
Posizione ideale per raggiungere ogni località della Sicilia orientale, sia verso il mare che verso la montagna, grazie al suo collegamento prossimo con l'autostrada.

Punti di forza dell'immobile:

  • panoramicissimo
  • antico e originale
  • piscina e terreno

Informazioni principali

  • Vendita - Piena proprietà
  • Casale
  • 1069 mq
  • 15 (5 camere da letto, 10 altro), 2 bagni, cucina abitabile
  • 1 box/garage
  • 10 posti auto
  • Edificio (su 2 piani)
  • Da ristrutturare, classe immobile media
  • Non Arredato
  • Vetro / Legno
  • No
  • Nord, Ovest, Est, Sud
  • 115434

Altre caratteristiche

  • Terrazzo
  • Piscina
  • Camino
  • Cantina
  • Impianto tv
  • Infissi esterni
  • Taverna
  • Giardino Privato
  • Non Arredato

Costi

  • € 690.000
  • A/3, rendita € 766

Efficienza energetica

  • 1897
  • Da ristrutturare
  • Assente, alimentato a legna
  • Assente
  • G
  • 175 kWh/m2anno
A
B
C
D
E
F
G

Planimetria

Virtual Tour

Video

Indirizzo e mappa

Casale in vendita, Strada 34, Giarre