Terratetto unifamiliare in vendita, via dei Ginepri 2/Q, Porto Torres

€ 275.000
  • 188 mq superficie
  • 5 locali locali
  • T piano piano
  • 3 bagni bagni
  • 1 p. auto p. auto
  • 188 mq superficie
  • 5 locali locali
  • T piano piano
  • 3 bagni bagni
  • 1 p. auto p. auto

Descrizione

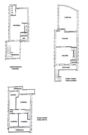
All’interno di un residence riservato e curato, proponiamo raffinata villetta a schiera libera su due lati paralleli, con esposizione fronte/retro, sviluppata su tre livelli per una superficie complessiva di 188 mq ca., pensata per chi desidera un’abitazione che unisca comfort, privacy e qualità della vita.

Nella zona giorno dominano luce, convivialità e continuità con l’esterno.
Il piano terra accoglie con una zona giorno ampia e luminosa, dove la cucina a vista con sala da pranzo si integra armoniosamente con la sala living, separata da una elegante porta scorrevole che consente di modulare gli ambienti con stile.
Dalla cucina si accede al cortile privato di generose dimensioni, vero prolungamento della casa, ideale per cene all’aperto, momenti di relax e accoglienza degli ospiti in totale privacy.
Completa il piano un bagno di servizio.

Zona notte in totale privacy e balconi vista mare.
Il primo piano ospita la zona notte, composta da tre camere da letto, di cui una attualmente adibita a cabina armadio.
Tutte le camere dispongono di accesso diretto al balcone, con due camere che regalano una suggestiva vista mare, perfetta per iniziare la giornata con luce e respiro.
Il bagno padronale, completo di doccia, è valorizzato da una porta finestra con accesso alla terrazza, che dona luminosità naturale e un piacevole affaccio esterno.

Taverna, spazio versatile e indipendente.
Il piano seminterrato ospita una taverna ampia e accogliente, ideale come zona relax, area hobby o spazio dedicato al benessere.
La taverna è dotata di bagno e di doppio accesso, uno interno e uno diretto verso il cortile, rendendola perfettamente fruibile anche in modo indipendente.

Tecnologia, efficienza e comfort la fanno da padrona.

Classe energetica B

Riscaldamento autonomo con caldaia GPL

Termosifoni e pompe di calore

Gestione degli impianti da remoto tramite app

Autoclave con cisterna da 1.000 litri

Predisposizione per metano

Comodo posto auto incluso nel prezzo.

Una soluzione pronta da vivere, inserita in un contesto residenziale esclusivo, ideale per chi cerca eleganza, spazi ben distribuiti e un’abitazione capace di offrire comfort e serenità ogni giorno.

Punti di forza dell'immobile:

  • cortile
  • vista mare
  • open space

Informazioni principali

  • Vendita - Piena proprietà
  • Terratetto unifamiliare
  • 188 mq
  • 5 (3 camere da letto, 2 altro), 3 bagni, cucina a vista
  • 1 posto auto
  • Multipiano (su 3 piani)
  • Ottimo, classe immobile signorile
  • Non Arredato
  • Doppio vetro / PVC
  • No
  • Sud, Cavedio
  • 148408

Altre caratteristiche

  • Balcone
  • Cantina
  • Cablato
  • Cancello elettrico
  • Porta blindata
  • Impianto tv
  • Fibra Ottica
  • Infissi esterni
  • Armadio a muro
  • Giardino Privato
  • Non Arredato

Costi

  • € 275.000
  • A/3, rendita € 562
  • € 38/mese

Efficienza energetica

  • 2009
  • Ottimo
  • Autonomo, a radiatori, alimentato a gpl
  • Autonomo
  • Freddo/Caldo
  • B
  • 175 kWh/m2anno
A
B
C
D
E
F
G

Planimetria

Virtual Tour

Indirizzo e mappa

Terratetto unifamiliare in vendita, via dei Ginepri 2/Q, Porto Torres