Attico in vendita, via di Torre Rossa 35, Gregorio VII, Roma

€ 520.000
  • 130 mq superficie
  • 4 locali locali
  • A piano piano
  • 2 bagni bagni
  • 1 p. auto p. auto
  • 130 mq superficie
  • 4 locali locali
  • A piano piano
  • 2 bagni bagni
  • 1 p. auto p. auto

Descrizione

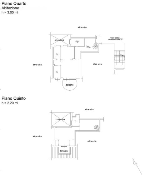
Proponiamo in vendita esclusivo attico di 130 mq disposto su due livelli (quarto e quinto piano), all’interno di uno stabile signorile attualmente oggetto di completo rifacimento delle facciate con cappotto termico, elemento che garantisce comfort ed efficienza energetica nel tempo.

Al quarto piano abbiamo:

L’ingresso che conduce ad un ampio salone luminoso con accesso al balcone, ambiente ideale per accogliere ospiti o vivere momenti in famiglia.
La cucina è abitabile, separata e funzionale.
Completano il livello una camera, un comodo ripostiglio e un bagno.

Al quinto piano invece:

Salendo attraverso la scala interna si accede alla zona più intima della casa: una camera matrimoniale con accesso diretto al terrazzo, uno spazio riservato dove rilassarsi, o semplicemente godere della quiete e dell’esposizione aperta.
Presente un secondo bagno a servizio del piano.

L’immobile si presenta da ristrutturare, offrendo la possibilità di ridisegnare gli ambienti e valorizzarne appieno il potenziale, creando una residenza su misura.
La proprietà provvederà a propria cura e spese alla sostituzione completa di tutti gli infissi, ulteriore valore aggiunto in termini di comfort e prestazioni.

Completano la proprietà:
- POSTO AUTO DI CA. 18 MQ
- CANTINA DI CA. 5 MQ
- SERVIZIO DI PORTINERIA ATTIVO PER L'INTERA GIORNATA

Una soluzione ideale per chi è alla ricerca di un’abitazione di carattere, con spazi esterni vivibili, privacy e la possibilità di personalizzare ogni dettaglio.

Punti di forza dell'immobile:

  • Posto auto
  • Spazi esterni
  • Luminoso

Informazioni principali

  • Vendita - Piena proprietà
  • Attico
  • 130 mq
  • 4 (2 camere da letto, 2 altro), 2 bagni, cucina abitabile
  • 1 posto auto
  • 4° di 5, con ascensore
  • Da ristrutturare, classe immobile signorile
  • Non Arredato
  • Doppio vetro / Legno
  • Intera Giornata
  • Ovest, Sud, Cavedio
  • 182564

Altre caratteristiche

  • Terrazzo
  • Balcone
  • Ascensore
  • Cantina
  • Cancello elettrico
  • Videocitofono
  • Impianto tv
  • Fibra Ottica
  • Infissi esterni
  • Non Arredato

Costi

  • € 520.000
  • A/2, rendita € 1.846
  • € 55/mese

Efficienza energetica

  • 1974
  • Da ristrutturare
  • Centralizzato, a radiatori, alimentato a gas
  • Autonomo
  • G
  • 175 kWh/m2anno
A
B
C
D
E
F
G

Planimetria

Virtual Tour

Video

Indirizzo e mappa

Roma - Via di Torre Rossa, 35, Gregorio VII

Zona Gregorio VII

Annunci simili