Terratetto unifamiliare in vendita, via Roma, Codevigo

€ 189.000
  • 290 mq superficie
  • 5 locali locali
  • T piano piano
  • 2 bagni bagni
  • 12 p. auto p. auto
  • 290 mq superficie
  • 5 locali locali
  • T piano piano
  • 2 bagni bagni
  • 12 p. auto p. auto

Descrizione

Codevigo: l’indipendenza totale al prezzo di un appartamento.
Se stai cercando una soluzione che offra spazio, autonomia e versatilità senza i vincoli di un condominio, questa è un’opportunità rara. A breve distanza dal centro di Codevigo, proponiamo una casa singola che vanta un rapporto qualità-prezzo imbattibile: con l'investimento solitamente necessario per un piccolo appartamento, qui acquisti una residenza indipendente con metrature e accessori introvabili.
La posizione è il giusto compromesso per chi non vuole rinunciare a nulla: godrai della massima privacy, grazie allo scoperto privato che isola la casa dal passaggio, mantenendo però tutta la comodità dei servizi del paese raggiungibili in pochi istanti.
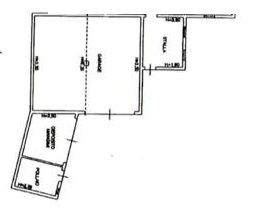
L'abitazione si sviluppa su due livelli con ambienti ampi e luminosi:
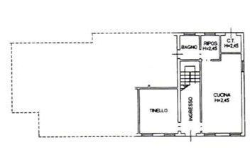
Piano Terra: Un grande ingresso che conduce a una vastissima zona soggiorno/cucina, con annesso cucinino, da configurare a piacimento. È presente inoltre una stanza jolly, ideale come ufficio, sala hobby o camera al piano, oltre a un bagno finestrato.
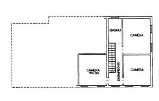
Piano Primo: La zona notte dispone di tre camere da letto dalle metrature generose e un secondo bagno padronale.
Il vero plus: spazi infiniti per i tuoi hobby. A differenza delle case moderne, qui lo spazio non manca mai. La proprietà include volumi accessori fondamentali per chi ha necessità extra:
- Una funzionale cantina/ripostiglio.
- Un grande garage e ricovero attrezzi: due ambienti spaziosi, uno adiadente all'abitazione e uno staccato, perfetti per chi ha bisogno di un’officina privata, un magazzino o un luogo sicuro dove coltivare le proprie passioni e riporre attrezzature.
L'immobile è circondato da uno scoperto di proprietà di circa 850 metri quadrati, in gran parte pavimentato, che garantisce facilità di manovra per più auto e una manutenzione esterna comoda.
Questa casa rappresenta una scelta abitativa concreta, solida e incredibilmente vantaggiosa.
N.B.: L'indirizzo esposto è indicativo, contattaci per conoscere l'esatta ubicazione!

Punti di forza dell'immobile:

  • Rapporto Qualità/Prezzo Imbattibile
  • Massima Indipendenza e Privacy
  • Spazi Accessori Generosi

Informazioni principali

  • Vendita - Piena proprietà
  • Terratetto unifamiliare
  • 290 mq
  • 5 (3 camere da letto, 2 altro), 2 bagni, cucina abitabile
  • 2 box/garage
  • 10 posti auto
  • Edificio (su 2 piani)
  • Buono, classe immobile media
  • Non Arredato
  • Doppio vetro / Legno
  • No
  • Nord, Ovest, Est, Sud
  • 186948

Altre caratteristiche

  • Cantina
  • Impianto tv
  • Infissi esterni
  • Accesso per disabili
  • Giardino Privato
  • Non Arredato

Costi

  • € 189.000
  • A/2, rendita € 1

Efficienza energetica

  • 1970
  • Buono
  • Autonomo, a radiatori, alimentato a metano
  • Autonomo
  • G
  • 175 kWh/m2anno
A
B
C
D
E
F
G

Planimetria

Virtual Tour

Video

Indirizzo e mappa

Terratetto unifamiliare in vendita, via Roma, Codevigo