Villa in vendita, via Angitola 56, Santa Maria, Catanzaro

€ 220.000
  • 170 mq superficie
  • 6 locali locali
  • 1 piano piano
  • 2 bagni bagni
  • 3 p. auto p. auto
  • 170 mq superficie
  • 6 locali locali
  • 1 piano piano
  • 2 bagni bagni
  • 3 p. auto p. auto

Descrizione

Situata in una delle zone residenziali più tranquille di Catanzaro, questa villa unifamiliare si trova in Via Angitola. La posizione offre un contesto sereno e riservato, ideale per chi cerca un rifugio lontano dal caos cittadino, pur rimanendo a breve distanza dai principali servizi e collegamenti stradali. La villa è circondata da un giardino privato che garantisce privacy e uno spazio verde dove rilassarsi o intrattenere ospiti.

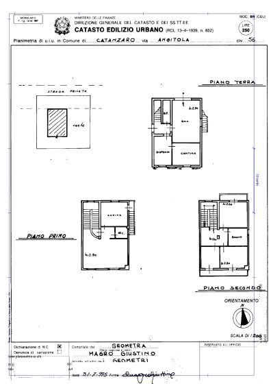
L'immobile si sviluppa su tre piani e offre una superficie commerciale di circa 170 metri quadrati. Al piano principale, si trova una cucina abitabile, perfetta per chi ama cucinare e trascorrere del tempo in famiglia. Le tre camere da letto offrono ampio spazio per una famiglia, mentre i due bagni garantiscono comfort e praticità. Un balcone e un terrazzo completano la composizione, offrendo ulteriori spazi all'aperto per godere delle belle giornate. La villa dispone anche di una taverna, ideale per creare un'area relax o un'ulteriore zona di intrattenimento, arricchita da un camino, che aggiunge un tocco di calore e accoglienza all'ambiente.

L'immobile è dotato di un box auto e due posti auto, garantendo ampio spazio per il parcheggio. La presenza di una cantina offre ulteriore spazio di stoccaggio. Gli infissi esterni in vetro e metallo assicurano una buona efficienza energetica. La villa è dotata di riscaldamento autonomo a radiatori alimentati a metano, garantendo un ambiente confortevole durante tutto l'anno. La sicurezza è assicurata da una porta blindata e un cancello elettrico. L'immobile, pur essendo abitabile, offre la possibilità di personalizzazione per chi desidera adattarlo alle proprie esigenze. Non è presente un servizio di portineria e l'immobile viene venduto non arredato, permettendo di arredarlo secondo il proprio gusto personale.

Punti di forza dell'immobile:

  • Esposizione
  • Ubicazione
  • Ampia metratura

Informazioni principali

  • Vendita - Piena proprietà
  • Villa unifamiliare
  • 170 mq
  • 6 (3 camere da letto, 3 altro), 2 bagni, cucina abitabile
  • 1 box/garage
  • 2 posti auto
  • 1° di 2
  • Abitabile, classe immobile media
  • Non Arredato
  • Vetro / Metallo
  • No
  • Nord, Est, Sud
  • 157772

Altre caratteristiche

  • Terrazzo
  • Balcone
  • Camino
  • Cantina
  • Cablato
  • Cancello elettrico
  • Porta blindata
  • Impianto tv
  • Fibra Ottica
  • Infissi esterni
  • Taverna
  • Armadio a muro
  • Giardino Privato
  • Non Arredato

Costi

  • € 220.000
  • A/2, rendita € 484

Efficienza energetica

  • 1990
  • Abitabile
  • Autonomo, a radiatori, alimentato a metano
  • Assente
  • G
  • 175 kWh/m2anno
A
B
C
D
E
F
G

Planimetria

Virtual Tour

Video

Indirizzo e mappa

Villa in vendita, via Angitola 56, Catanzaro

Zona Santa Maria

Annunci simili